Hasil Karya Peserta – Training AutoCAD

Hasil Karya Peserta – Training AutoCAD

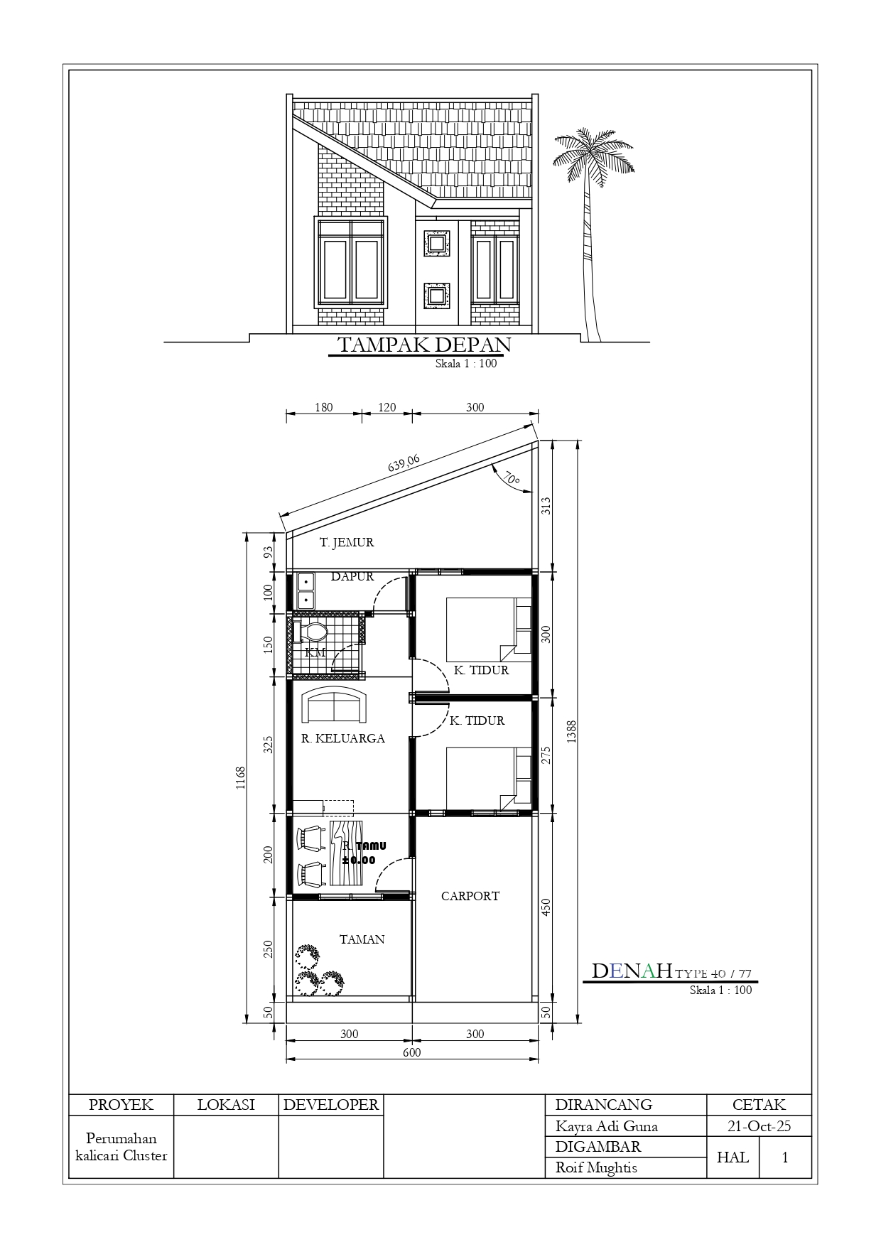
Wahana Training Semarang telah melaksanakan Kursus AutoCAD Fullpack selama 12 sesi, masing-masing berdurasi 2 jam. Pelatihan ini bertujuan untuk membekali peserta dengan kemampuan menggambar teknik 2D dan 3D menggunakan AutoCAD secara profesional, meliputi perancangan bangunan, denah, tampak, serta detail konstruksi.

Hasil karya peserta yang ditampilkan berupa desain rumah tipe 40, menunjukkan kemampuan dalam membuat gambar kerja arsitektur yang rapi dan terukur. Desain tersebut mencakup elemen-elemen penting seperti denah ruangan, tata letak furnitur, serta proporsi bangunan yang sesuai standar perencanaan hunian sederhana.

Melalui pelatihan ini, peserta berhasil menguasai proses perancangan bangunan secara digital menggunakan AutoCAD dari tahap dasar hingga lanjutan. Karya ini mencerminkan pemahaman peserta terhadap prinsip desain arsitektur dan teknis gambar kerja.